Мы используем куки-файлы. Соглашение об использовании
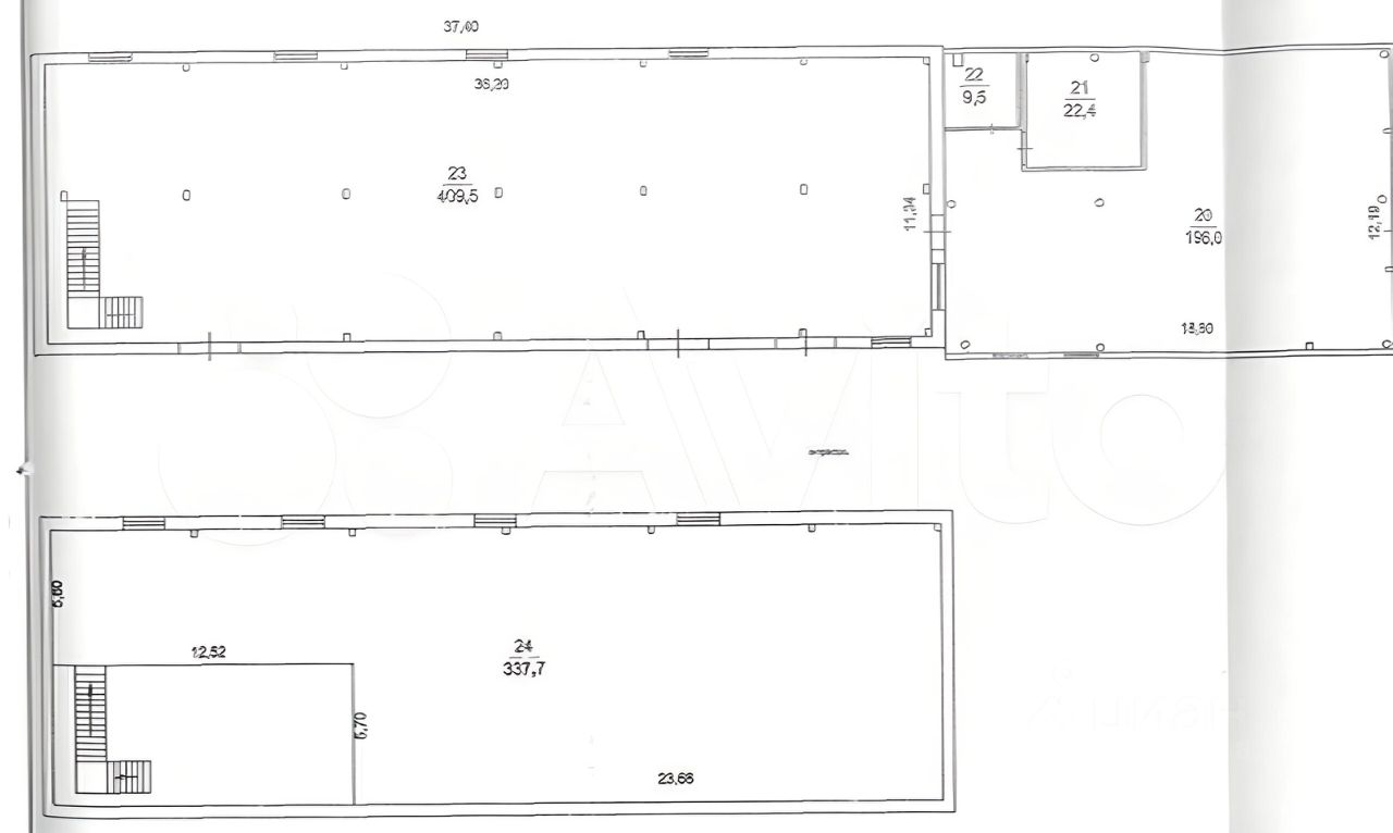
Площадь975 м²
Этаж1 из 1
ПомещениеСвободно
Отчёт о привлекательности объектаУзнайте, насколько помещение и район подходят для вашего бизнеса
Что входит в отчёт
  • Охват населения
  • Пешеходный трафик
  • Автомобильный трафик
  • Средний бюджет семьи по району
  • Арендные ставки рядом
  • Точки притяжения
  • Конкуренты в радиусе 1 км
  • Рекомендации по выбору места для бизнеса
Собственник сдаёт производственно-складское помещение площадью 975 кв. М. Помещение (здание) расположено на территории производственно-складского комплекса. Территория комплекса закрыта, круглосуточно охраняется. Помещение тёплое, высота потолков — от 3,5 (на антресоли) до 6 метров. Отопление — городское магистральное + своя резервная котельная. Led освещение. Достаточное количество электроэнергии (до 250 ква). 2 ворот на нулевом уровне. Есть помещение для кладовщиков, административного персонала. На территории есть возможность арендовать дополнительные площади, складскую технику, воспользоваться услугами ответственного хранения, транспортной компании, ж/д ветки. Объект обслуживается собственной службой эксплуатации. Удобный заезд с Горьковского шоссе, трассы М-12. Помещение идеально подойдёт для размещения склада, небольшого производства.
lock

Войдите или зарегистрируйтесь
для просмотра информации

Просматривайте условия сделки и всю информацию об объекте
Сохраняйте фильтры в поиске и не вводите заново
Доступ к избранному с любого устройства
Неограниченное добавление в избранное
Позвоните автору
Вам ответят на все вопросы
Остались вопросы по объявлению?
Позвоните владельцу объявления и уточните необходимую информацию.
  • Инфраструктура
  • Похожие рядом
  • Общая площадь975 м²
Помощь надёжных риелторов
Риелтор партнёр Циан поможет купить или продать любую недвижимость
Отдел арендыСАВЕЛОВГРАД
Суперагент
  • 13 лет 11 месяцев на ЦИАН
  • 5 объявлений
  • 585 000 ₽/мес.

    Прямая аренда (от года), минимальный срок аренды 11 месяцев, обеспечительный платёж 585000 ₽, предоплата за 1 месяц

    7 688 $/мес.
    6 595 /мес.
    Цена за метр
    7 200 ₽ в год
    Налог
    НДС включен: 97 500 ₽
    Комиссии
    нет
    Коммунальные платежи
    не включены
    Эксплуатационные расходы
    включены
    Отдел арендыСАВЕЛОВГРАД
    Суперагент